Бизнес-центр «Ост Хаус»

Мы предлагаем

Аренда и продажа офисных помещений в 6-этажном Бизнес-центре «Ост Хаус» по адресу Москва, Барыковский пер., д. 2 от собственника без комиссии

Звоните: +7 (495) 822-30-70

  • Метро

    Кропоткинская

  • Район

    Хамовники

  • Округ

    Центральный (ЦАО)

  • Деловая зона

    Между Бульварным и Садовым кольцом

Актуальная информация обо всех вакантных площадях предоставляется по запросу

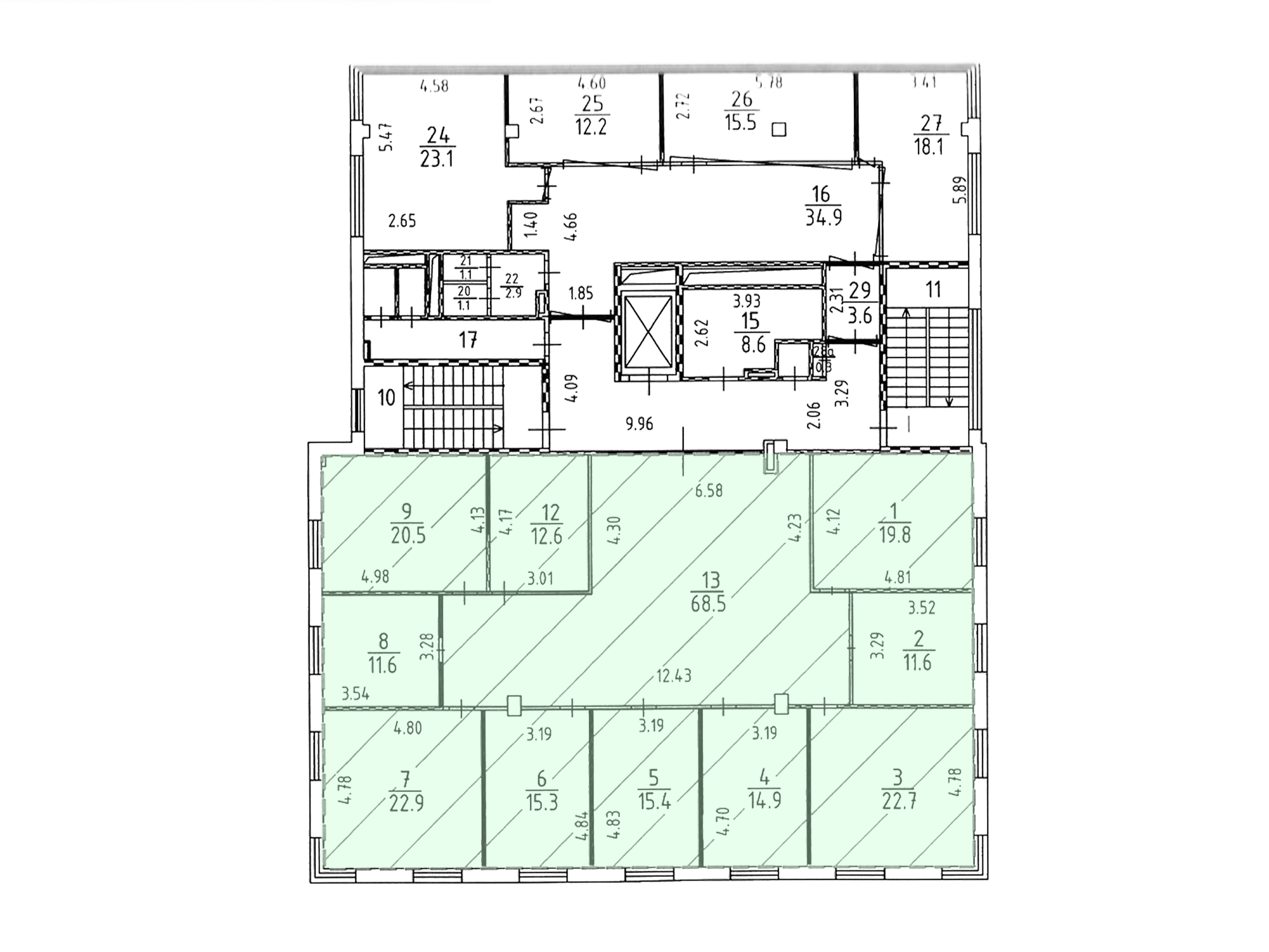
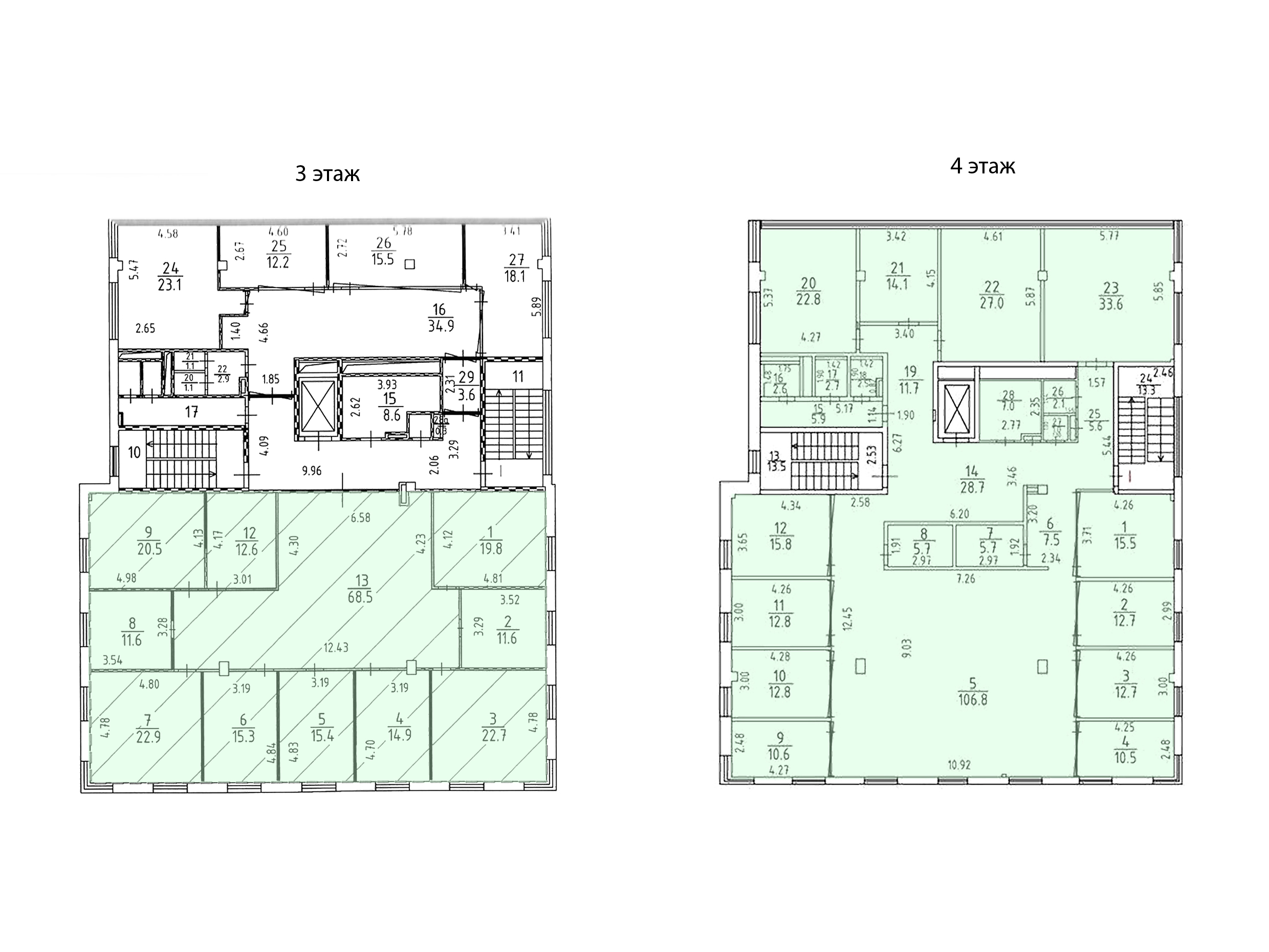
Характеристики

  • Арендопригодная площадь, кв.м

    3 157

  • Общая площадь, кв.м

    3 157.2

  • Статус

    Построен

  • Код налоговой

    4

  • Год постройки

    2008

  • Этажность

    6

  • Тип здания

    Офисное здание

  • Кондиционирование

    Центральное

  • Вентиляция

    Приточно-вытяжная

  • Инфраструктура

    Ателье одежды

  • Лифт

    есть

  • Планировка

    Open space, Кабинеты

  • Паркинг подземный, м/мест

    4

  • Паркинг наземный открытый, м/мест

    2

Фотогалерея

Об объекте

Бизнес-центр класса A удачно расположен в пешей доступности от станции метро «Кропоткинская». Вблизи имеются остановки общественного транспорта. Есть выезды на Садовое и Третье Транспортное кольцо.

В фасаде здания сочетаются неоклассические и ультрасовременные архитектурные элементы. Арендаторам доступны офисы смешанной планировки, что удобно для самостоятельного зонирования помещений на площадки для персонала, кабинеты для отделов, руководителей. Оптимальный температурный режим и приток свежего воздуха обеспечивается системой центрального кондиционирования и приточно-вытяжной вентиляцией.

Арендаторы могут пользоваться услугами подземного паркинга. Также для сотрудников и гостей имеется открытый наземный паркинг. В здании проведены необходимые телекоммуникации, организована круглосуточная охрана.

Арендная ставка включает НДС и OPEX. Просмотр офисов возможен в удобное для вас время — достаточно заранее оставить заявку. Аренда без посредников — нет комиссий и иных дополнительных платежей. Для уточнения интересующих вопросов заполните форму или позвоните нам по телефону.

Адрес

Москва, Барыковский пер., 2